Denah rumah minimalis 3 kamar tidur - Pada zaman sekarang ini desain rumah minimalis menjadi konsep hunian yang diidolakan dalam bisnis properti. Mulai dari hunian kelas entry level hingga menengah banyak yang mengaplikasikan denah rumah minimalis. Tren rumah minimalis ini mempunyai banyak ragam mulai dari small , medium dan large ada juga yang berlantai satu, berlatai dua atau bahkan lebih. Untuk kali ini akan saya bagikan beberapa contoh denah rumah minimalis yang memiliki 3 buah kamar tidur.Meskipun menggunakan kata "minimalis", tidak menjadikan hunian tersebut menjadi sesuatu yang disepelekan. Karena pada penerapannya konsep minimalis membutuhkan ketepatan ide, pemanfaatan lahan yang maksimal dan terkadang membutuhkan budget yang tidak minimal. Pemanfaatan lahan untuk memaksimalkan ruangan berkaitan dengan bagaimana memilih konsep rumah minimalis. Semakin baik denahnya, maka semakin banyak lahan yang bisa dimanfaatkan.Denah rumah merupakan salah satu komponen yang tidak boleh dilupakan dalam membangun rumah, merenovasi atau memperbaiki. Denah ini sebagai acuan tata telatak ruangan dirumah yang akan dibangun. Denah rumah perlu dipahami agar kerja pembangunan atau renovasi bisa berjalan dengan efisien. Dengan begitu ongkos atau biaya yang kita keluarkan bisa ditekan seminimal mungkin.Fungsi Denah Rumah
Jika akan membangun rumah minimalis yang mempunyia 3 kamar tidur maka kita harus membuat denah untuk rumah minimalis 3 kamar tidur. Dalam pembuatan denah rumah ini mempunyai bermacam tujuan baik dalam kegiatan perencanaan, pelaksanaan pembangunan maupun pemeliharaan rumah. Berikut ini adalah fungsi denah yang dapat kita uraikan :- Denah sebagai pedoman dalam menghitung perkiraan rencana anggaran biaya bangunan(RAB).
- Denah menjadi pedoman pelaksanaan pembangunan agar sesuai dengan harapan dalam perencanaan.
- Denah sebagai Pedoman dalam manajemen bangunan seperti penentuan jalur evakuasi ketikaterjadi bencana, penjelasan lokasi berdiri dan melakukan pemeliharaan banguna.
Rumah minimalis yang mempunyai 3 kamar ini merupakan model yang banyak diterapkan oleh banyak orang. Hal ini dikarenakan stardar dalam keluarga yang berencan cukup dengan membangun 3 buah kamar tidur. Denah yang disajikan disertakan dengan ukuran sehingga anda dapat menggunakannya sebagai acuan dalam ukuran rumah yang akan anda bangun.
Denah rumah minimalis 3 kamar tidur
Seperti yang dijelaskan sebelumnya denah merupakan tahap awal yang terpenting untuk menentukan model dan ciri suatu bangunan. Berikut ini adalah denah rumah minimalis yang bisa Anda gunakan untuk membangun rumah idaman Anda.
 |
| Denah Rumah Minimalis 3 Kamar Tidur |
 |
| Denah Rumah Minimalis 3 Kamar Tidur |
 |
| Denah Rumah Minimalis 3 Kamar Tidur |
 |
| Denah Rumah Minimalis 3 Kamar Tidur |
 |
| Denah Rumah Minimalis 3 Kamar Tidur |
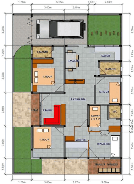
Dalam pembuatan denah tata letak ruang beserta seluruh interior adalah bagian yang harus di pertimbangkan dengan matang. Biasanya masalah yang paling sering di hadapi adalah penentuan ukuran, yang nanti akan mempengaruhi luas ruangan dan jumlah kamar tidur, yang biasanya orang menginginkan rumah minimalis 3 kamar tidur, dengan 1 kamar utama dan 2 kamar anak. Jadi dalam membuat denah perlu kecermatan dalam menentukan ukuran setiap ruangan.
 |
| Denah Rumah Minimalis 3 Kamar Tidur |
 |
| Denah Rumah Minimalis 3 Kamar Tidur |
 |
| Denah Rumah Minimalis 3 Kamar Tidur |
 |
| Denah Rumah Minimalis 3 Kamar Tidur |
 |
| Denah Rumah Minimalis 3 Kamar Tidur |
Pelu dkeathui denah rumah minimalis ini semaksimal mungkin memanfaatkan luas tanah yang terbatas. Tujuan utama adalah bisa berfungsi secara maksimal ketika ia memiliki banyak ruang di dalamnya, tapi juga harus nyaman untuk di huni. Beberapa Contoh gambar denah rumah minimalis sederhana 1 lantai dengan 3 kamar tidur dalam artikel ini mungkin bisa membantu. Denah yang dibuat ini menggunakan konsep minimalis sehingga lebih efesiensi dalam pembiayaan dan maksimal dalam memanfaatkan lahan.
 |
| Denah Rumah Minimalis 3 Kamar Tidur |
 |
| Denah Rumah Minimalis 3 Kamar Tidur |
 |
| Denah Rumah Minimalis 3 Kamar Tidur |
 |
| Denah Rumah Minimalis 3 Kamar Tidur |
 |
| Gambar Denah Rumah Minimalis 3 Kamar Tidur |
Pemilihan type modern, mungkin pilihan terbaik, sebab rumah minimalis modern sudah tentu menjadi idaman, lebih elegan dan banyak variasi serta inspirasi untuk mempercantiknya. Rumah minimalis sekarang ini dibuat dengan kesan modern walaupu rumah yang dibangun itu berukuran kecil misal type 36. Pada dasarnaya konsep rumah minimalis ini adalah konsep rumah modern saat ini.
 |
| Gambar Denah Rumah Minimalis 3 Kamar Tidur |
 |
| Denah Rumah Minimalis 3 Kamar Tidur |
 |
| Denah Rumah Minimalis 3 Kamar Tidur |
 |
| Denah Rumah Minimalis 3 Kamar Tidur |
 |
| Denah rumah minimalis 3 kamar tidur | |
 |
| Denah rumah minimalis 3 kamar tidur | |
0 comments: